Apartment – 54m² – Paris 4th
Apartment in a co-ownership regulated by the Law n°65-557 dated 10th July 1965
Apartment
3 Rooms
3rd
2 Bedrooms
Ile Saint Louis. Charming 3/4 rooms of 54m² on the ground. Unobstructed view!
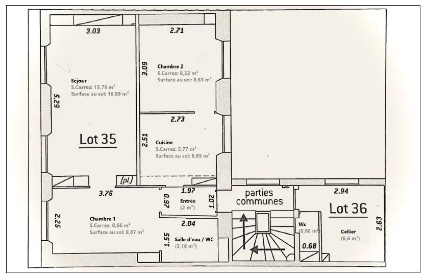
In the heart of Ile Saint-Louis, 3rd floor, 3-room apartment with 54m² floor area and 43.67 m² loi Carrez. It comprises an entrance hall, a living room, a separate kitchen, two bedrooms, a shower room and, on the same landing, a 7.48 m² office/bedroom with WC. Very bright, sky view, original floor tiles, great conversion potential. The District group comprises 5 agencies ideally located in the most prestigious areas of Paris: Ile Saint Louis, Saint Germain des Prés, Champ de Mars, the Golden Triangle in the 8th arrondissement and Parc Monceau. Since 1997, we've been offering you a range of carefully selected and valued properties, as well as top-of-the-range services (sale, purchase, rental, management).
This apartment which was of interest to you is unfortunately in the process of being sold. Receive a preview of our properties by signing up to our site's mail alert.




Discover the Parisian neighbourhoods
Find all the essentials about neighbourhoods in Paris and the desirable nearby suburbs: Geographical location, History, Points of interest, Transport networks, etc....
Discover the Parisian neighbourhoods







