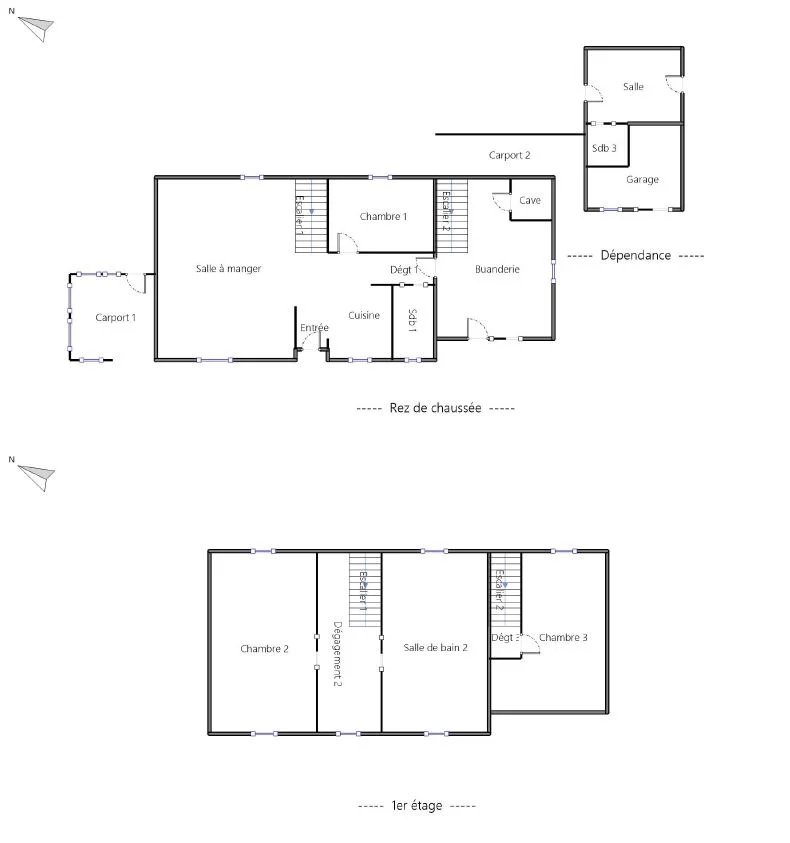
House – 200m² – Clohars-Carnoët
Apartment in a co-ownership regulated by the Law n°65-557 dated 10th July 1965
House
8 Rooms
Ground floor
3 Bedrooms
Clohars Carnoët - House of 200m². Land of 1900m². Outbuildings
Close to beaches and village of Clohars-Carnoët. Completely renovated house approx. 200 m², enclosed garden with trees 1900m². Patio with Jacuzzi, terrace. First floor: Entrance hall, large bright living room with solid oak parquet and wood-burning stove, adjoining living room with fitted and equipped kitchen. Bedroom with study area, shower room with WC. First floor: Landing/office area, suite with bathroom, storage space, dressing room, additional bedroom with privileged access. Outbuildings: Double garage with mezzanine. A 28m² commercial space. A wooden shed. Several parking spaces. Very well-maintained house. Landscaped garden, new joinery, electric shutters, VMC, automated gate, alarm, fiber. Close to shops, schools, Doëlan harbor and beaches.




